
3115 Albany Post Rd
Rte. 9A
Buchanan, NY 10511
P: 914-941-4230
F: 914-941-4232
E: info@atmglass.com
(click tab to view each section)
Table Top Measuring Guide
Types Of Edgework & Fabrication
Shower Door Measuring Guide
True Rectangle all corners have 90 deg. angles. must provide width and height. template is not needed. standard with polished edge- may also be beveled. |
|
True Circle only size needed is the diameter. standard with polished edge. other edgework requires specialty fabrication. |
|
Oval (template suggested) |
|
Race Track Oval (template needed) Must be kraft paper or plywood |
|
Boat (template needed) Must be kraft paper or plywood |
|
Triangle Template suggested unless you are familiar with angles. |
|
Trapezoid (template needed) Must be kraft paper or plywood |
|
Parallelogram (template needed) Must be kraft paper or plywood |
|
Pentagon template suggested |
|
Hexagon template suggested |
|
Octagon |
|
Other Shapes | We can cut your glass or mirror into many other shapes not shown above. We would need to physically see the item you with to have fit. |
Types of Edgework
| Standard Type: Furniture quality edge. Also called a high polish. Aris edges. |
| 1" Standard: other sizes available. *max bevel on 1/8" glass is 1/2" |
| Most commonly used with frameless shower doors where return angles are +/- 90 degrees. |
| Glass is seamed off at top and bottom surfaces to remove sharp edges. Face of glass is un polished. |
| Glass is cut with no edgework. Glass will be sharp! |
Corner edge work:
(click image to see full size)
Over 25 cent radius corners template is required
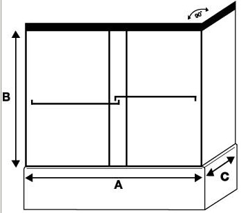
Measuring for a shower door can be a little tricky, but with the guides provided below you should be able to get an idea of what information is needed to receive accurate pricing. We try to provide as accurate as pricing possible without seeing a physical location, so the more information available, the more accurate your price will be. Remember, for pricing purposes sizes do not need to be exact.
A few key pointers to remember:
Metal Finish: Frameless doors generally do not see a price fluctuation with metal finish, with the exception of some of the antique or patina finishes. Framed and Semi Frameless doors will Incur price adjustments for finishes other than chrome.
Glass Type: Frameless doors are standard with 3/8" glass, over 80" we recomend use of 1/2" glass, reason for this is that over 80" in height, 3/8" is subjected to bowing and distortion when tempered. This is considered an "acceptable flaw" of tempered glass. It is not our acceptable flaw however, and to ensure our clients the greatest level of satisfaction, over 80" in height, we will recomend use of 1/2" glass. Patterned, obscured or low iron glass will incur price adjustment.
Out of square/plumb conditions: may incur additional costs- depending on complexity. Frameless shower doors are measured to the 1/16" of an inch. Conditions such as bows, crowns or items requiring "double cuts" involve greater fabrication and technical skill.
(below configurations reflect common configurations). Click image to see larger
Corner Enclosure | |
Inline Enclosure with inline buttress walls | |
Inline Enclosure with buttress wall/bench | |
90 degree corner enclosure with buttress return | |
90 degree corner enclosure with buttress wall/bench at inline section and at return return | |
Neo angle (shown with and without buttress) | |
Inline enclosure | |
| common tub (slider) |
| common tub (slider) with 90 degree return |
ATM Mirror and Glass
3115 Albany Post Road
Buchanan, NY 10511
Ph: 914-941-4230 F: 914-941-4232 E: info@atmglass.com
©2011 ATM Mirror and Glass, LLC
©2011 ATM Mirror Inc.